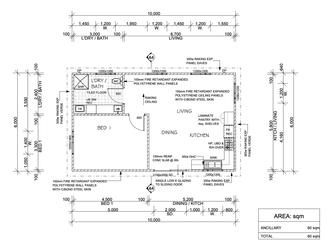
60 SQM 1x1 made for accessible living, complete kitchen with Polytec bench-tops, Complete tiled laundry / bathroom , Walk in shower , Full laundry , Hybrid laminate flooring through-out , accessible doors, Split system A/C

Previous
Previous

21SQM - The Studio

Next
Next

Liveable Sheds